APPLICATION APPROVED

APPLICATION APPROVED

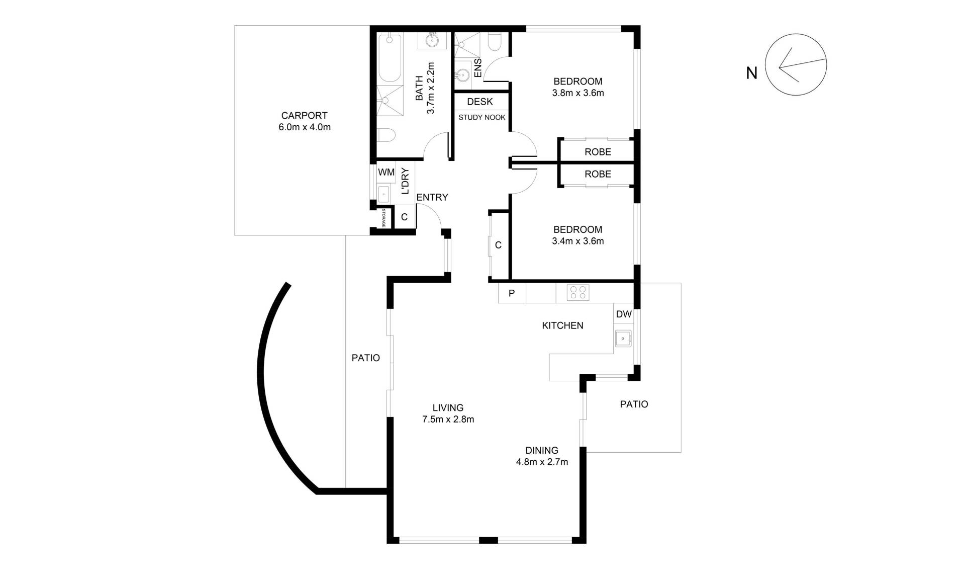
MODERN + CONVENIENT!

Modern and contemporary, this north facing home is privately and quietly tucked at the back of the block enjoying a leafy outlook from all windows.

It’s incredibly low maintenance and ideally located just 280 metres to Leura Mall and less than 550 metres to the Train Station.

Spacious, bright and airy, features include:

-    Open plan living/dining with high ceilings and striking feature windows
-    Floor to ceiling glazed doors either side of the living/dining leading to courtyards to both the north and south sides (amazing cross ventilation)
-    Large kitchen with stone benchtops, gas cooking and dishwasher
-    Two spacious bedrooms both with built-in robes, main bedroom benefits from an en-suite
-    Huge main bathroom with separate bath & shower
-    Convenient study nook tucked away in the hallway
-    Ducted gas heating throughout
-    Internal laundry, great sized linen cupboard
-    Flyscreens on all windows
-    Carport

The rear yard is a great size and It currently features a series of paths and garden beds housing plum and apple trees to name a few.

6 months lease minimum

No pets - sorry!   Available 24 October 2023.

Features

Terrace/Paved Courtyard Low maintenance Level Block
2 2 1 309 m2
Available Leased
Address 3/101 Megalong St, Leura
Price $560pw
Property Type Rental
Property ID 1688
Category Villa
Land Area 309 m2

Agent Details

Leanne Sherrington photo

Leanne Sherrington

02 4784 1991
View Profile