AMAZING HOME, AMAZING OUTLOOK!

With working or spending more time from home now more common than ever, it's important to enjoy an outlook you love and you WILL love overlooking 57 acres of community parklands!

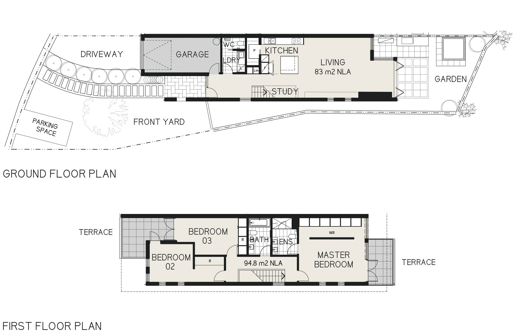
This contemporary home was built in late 2019 and boasts 214sqms of living over two levels. Apart from being directly adjacent to the parklands, it's just 1.1kms to the breathtaking Cahill's Lookout (known for the best sunsets in the area).

Accommodation comprises of:

- Huge open plan living/dining area, timber-like floor tiles, retractable flyscreens

- Bi-fold doors lead to a private courtyard overlooking 57 acres of parklands, ponds and walking tracks

- Extensive use of floor to ceiling glass capturing magnificent vistas

- Designer kitchen with stone benchtops, polyurethane joinery, gas cooking, huge island and walk-in pantry

- Three great sized bedrooms all with built-in robes and balcony access

- Master bedroom overlooks the parklands and has a huge walk-in wardrobe and chic en-suite

- Oversized main bathroom with bath

- Laundry with separate WC

- Lock up garage with a driveway in the front yard (parking for 3 vehicles)

Other features include quality wool carpets in the bedrooms, ducted reverse cycle air conditioning throughout, instantaneous gas hot water and NBN access.

The location is absolutely brilliant. In addition to stunning lookouts nearby, you are also just a short trip to the Katoomba Sports & Aquatic Centre, and the Town Centre.

If you've always wanted a taste of the Mountains lifestyle, here is your chance! Easy to care, just lock up and go. It would make a great home, investment (excellent depreciation available) or weekend escape.

Size: Land 257sqms (approx), Internal 214sqms (approx)

Council rates: $309.70 per quarter

Water rates: $147.00 per quarter

Community title contributions: $161.00 per quarter

Rental status: $580.00 - $600.00 per week

Features

Balcony Terrace/Paved Low maintenance Grey Water System Garage Remote
3 2 3 257 m2
Address 20 The Escarpments, Katoomba
Price SOLD for $755,000
Property Type Residential
Property ID 1420
Category House
Land Area 257 m2

Agent Details

Marc Fitzpatrick photo

Marc Fitzpatrick

02 4784 1991
View Profile