Just Listed

ADORABLE TIMBER CLAD COTTAGE!

More photos available next week.

Located in a quiet pocket of Blackheath less than 300m from the stunning ‘Popes Glen’ walking trail, ‘Grevillea’ is a quintessential Mountains home.

Sitting in an elevated position on a low maintenance 681sqms block, there’s room to enjoy the gardens without having to spend all weekend looking after them! 

R2 zoning also makes a future potential studio much easier to do.

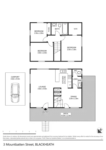
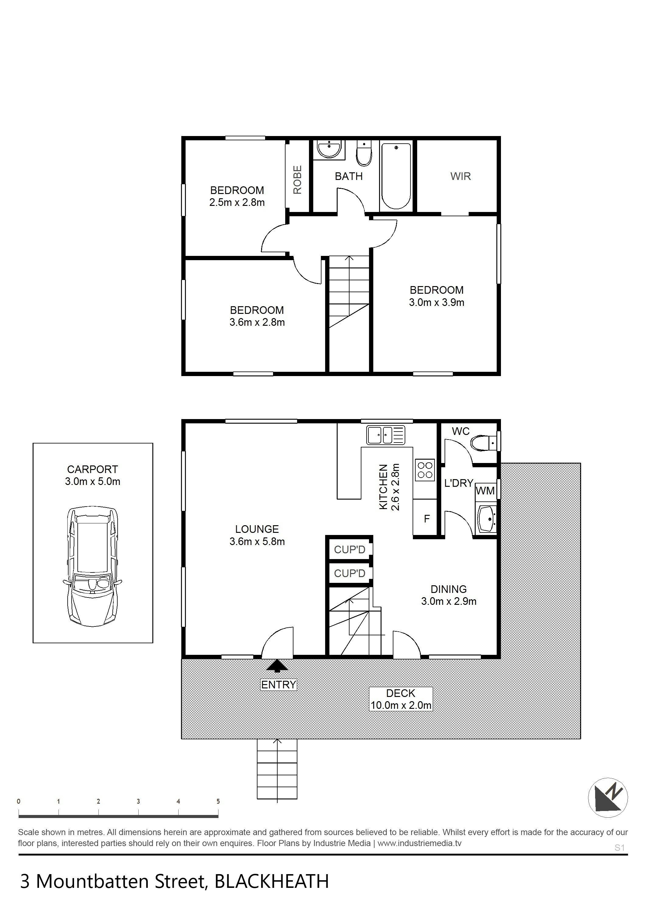
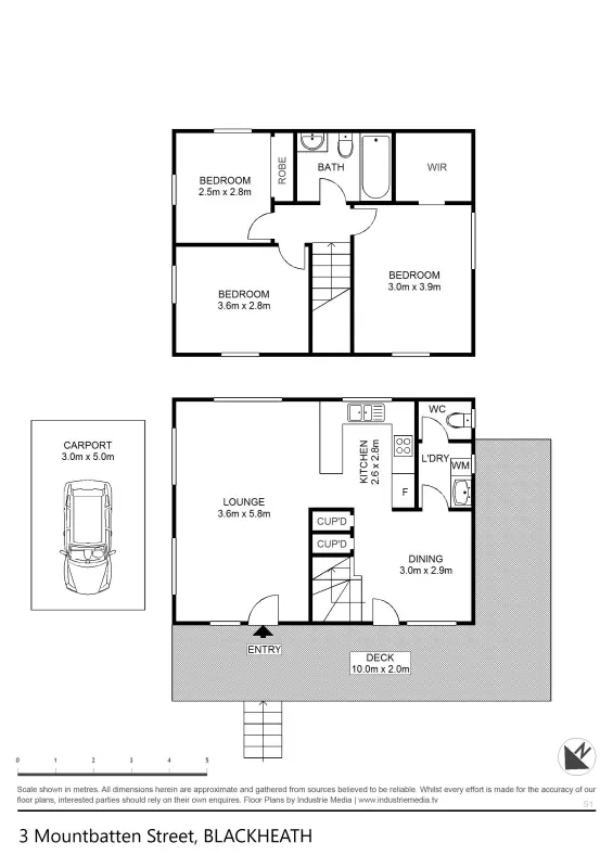
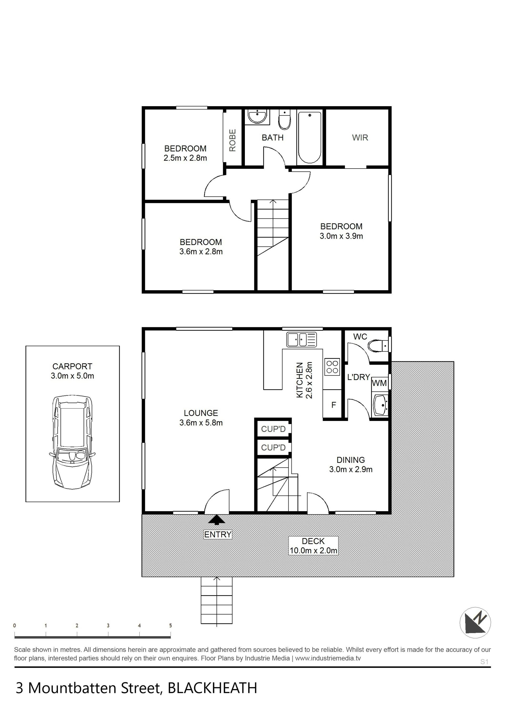
Accommodation includes:

-    Wide wrap-around verandah enjoying a delightful leafy outlook
-    Living/dining room with slow combustion fire
-    Exposed timber rafters gives the home a true ‘Mountains’ feel
-    Cosy second dining area or study
-    Basic but functional kitchen in great condition
-    Three upstairs bedroom with high cathedral ceilings (main has a walk-in robe)
-    Bathroom with combined bath/shower, velux skylight allows natural light to pour in
-    Internal laundry with second WC

Other features include storage under stairs, flyscreens throughout, a low running cost hot water system (only 2 years old), carport and shed.

The yards have been landscaped with a lovely selection of native plants and there’s a great combination of lawn and paved areas.

Govetts Leap Lookout is just 1.5km away, along with dozens of world class walking trails.

Blackheath village is just 1.6kms away where you can enjoy a number of great cafes, pubs and eclectic stores. There’s also the Train Station, a number of playgrounds for the kids and Blackheath Pool.

This will make a great first home. Whether you’re looking for the lifestyle on offer or the village charm, add this to your list to inspect!

Land size: 681sqms
Zoning: R2 – Low Density Residential
Rent potential: Around $580pw 

Features

Verandah Courtyard Outdoor entertainment area Fenced Fireplace Skylight
3 1 1 681 m2
Address 3 Mountbatten St, Blackheath
Price $849,000
Property Type Residential
Property ID 1838
Category House
Land Area 681 m2

Inspections

  Saturday 18 October 10:00 AM - 10:30 AM

Agent Details

Marc Fitzpatrick photo

Marc Fitzpatrick

02 4784 1991
View Profile